TALOFTS.COM
  • HOME
  • DESIGN
  • CONSTRUCTION
  • GALLERY
  • PODCAST
  • REVIEWS
  • QUOTE
  • HOME VALUE

Tassajara Meadows

Dublin, California
High Ceiling Conversion Room Additions
Tassajara Meadows Community Experts
Architectural floor plans for tract homes in Tassajara Meadows near Tassajara Creek in Dublin, California by the high ceiling conversion experts. We have all the modified architect floor plans for the new room additions for this tract. 
Original Tract Community - Architectural Floor Plans and Home Models / Sizes
Plan One - 3 bedroom, 2.5 bath, 1,659 sq ft.
​
Plan Two - 3 bedroom, 2.5 bath, 1,814 sq ft.
Plan Three - 4 bedroom, 2.5 bath, 1,986 sq ft.

Plan Four - 4 bedroom, 3 bath, 2,128 sq ft.

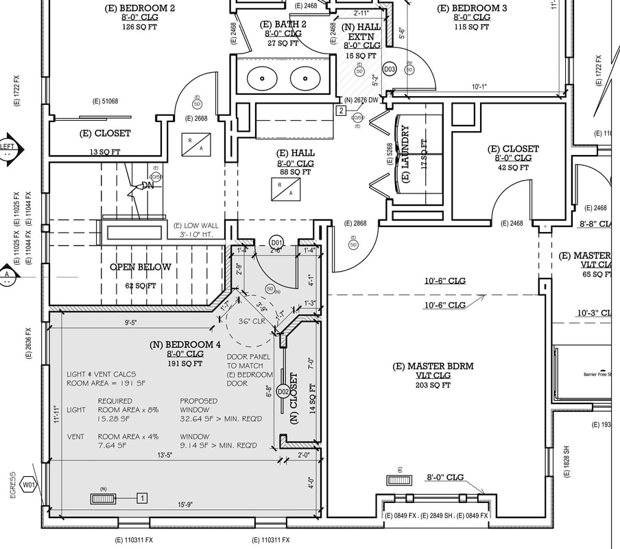
sample of plan 1

Plan One - Previously Approved Redesign

New bedroom addition and Jack and Jill bathroom door modification.
​Additional 214 sq ft. Project on Font Ct. in Tassajara Meadows tract.
Picture
Open-to-below space to be infilled for new bedroom addition.
FREE ONLINE HOME EVALUATION

All Projects Permitted - No Exceptions

TRUADDITIONS CORP CSLB 1059227 & TRUPLANS INC (dba TRULOFT) submits all projects for plan check and permitting through the Building Department Dublin, California which has jurisdiction over your home.
Building Department Located at: 100 Civic Plaza, Dublin, California 94568

1-888-350-8755

GET A FREE QUOTE
PRIVACY POLICY

TALOFTS.COM by TRUADDITIONS CORP  CA CSLB#1059227 AZ ROC#360788
a TRULOFT partnership corporation


San Francisco Bay Area 
(mailing address Bay area)
TRUADDITIONS CORP CSLB 1059227
910 D St, San Rafael, CA 94901



TRULOFT by TRUPLANS INC
​19900 Stevens Creek Blvd Ste 100, Cupertino, CA. 95014
in association with KW Realty

Valencia Santa Clarita Area
(mailing address Santa Clarita area)
TRUADDITIONS CORP CSLB 1059227

24820 Orchard Village Ste A #257, Santa Clarita, California 91355

California Corporate Headquarters
TRUPLANS INC & TRUADDITIONS CORP
630 S. Glassell Street, Suite 201, Orange, California 92866
​1-
888-350-8755

Copyright 2024/2025/2026 all rights reserved
​TRUPLANS INC & TRUADDITIONS CORP
  • HOME
  • DESIGN
  • CONSTRUCTION
  • GALLERY
  • PODCAST
  • REVIEWS
  • QUOTE
  • HOME VALUE